Experience
Projects
Resume
Contact
Isabella Mazzulla
Experience
Projects
Resume
Contact
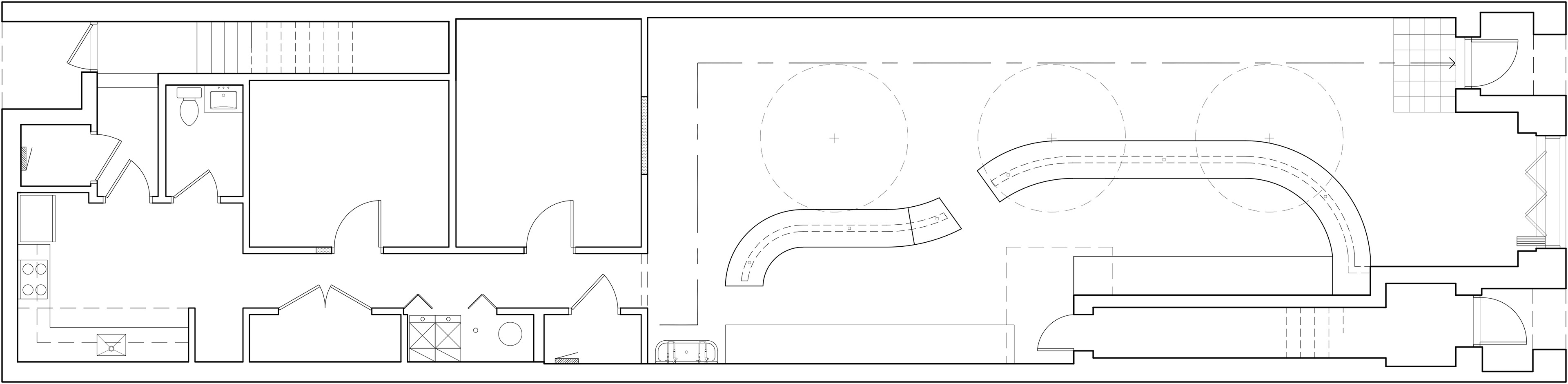
Aura Candle Shop
Renovation of a ground floor commercial space for a retail candle shop.
↑
Back to Top