Experience
Projects
Resume
Contact
Isabella Mazzulla
Experience
Projects
Resume
Contact
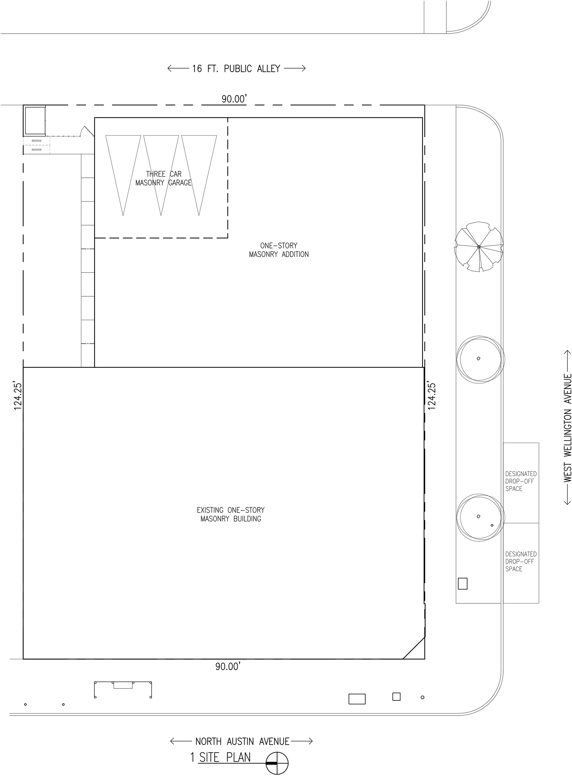
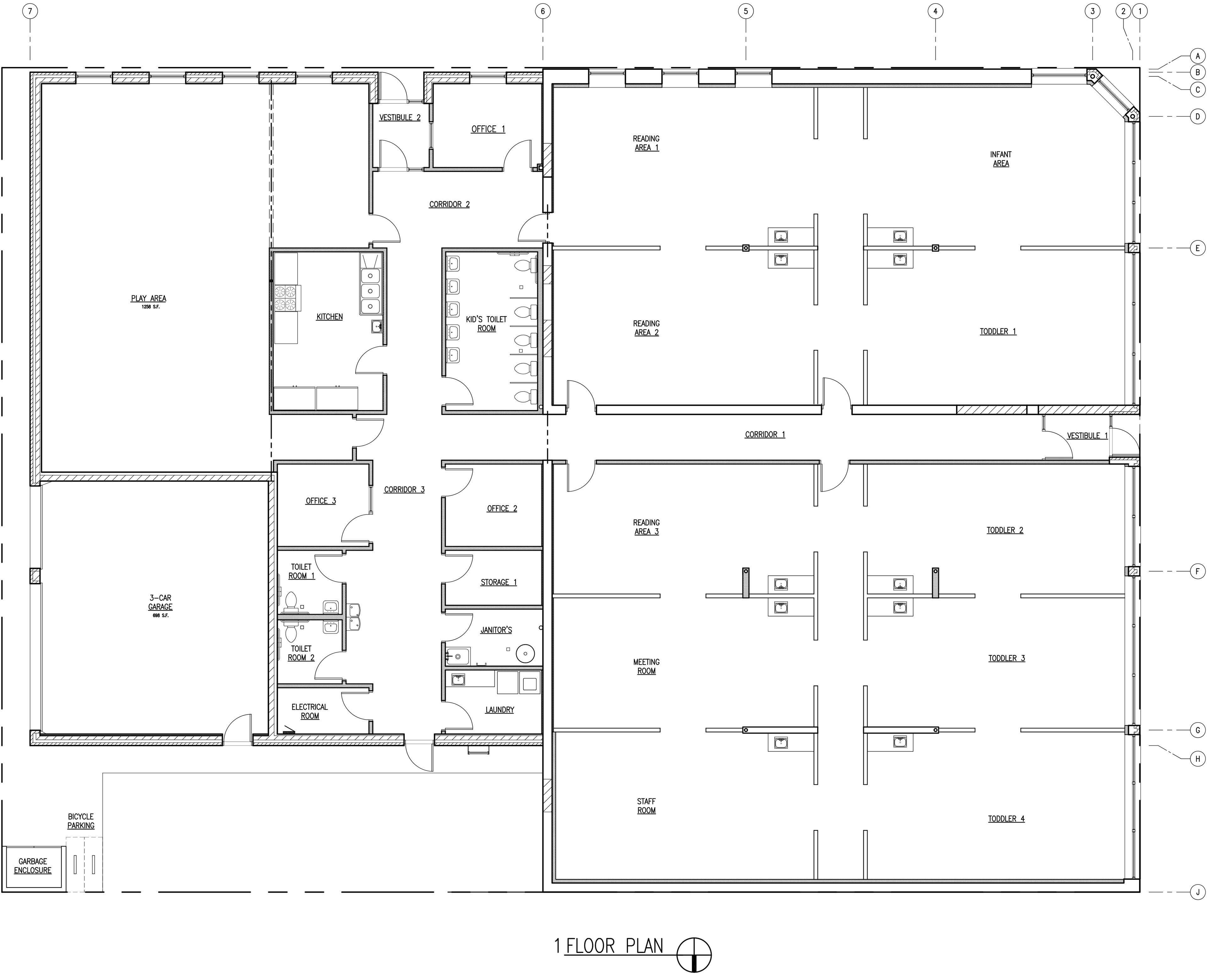
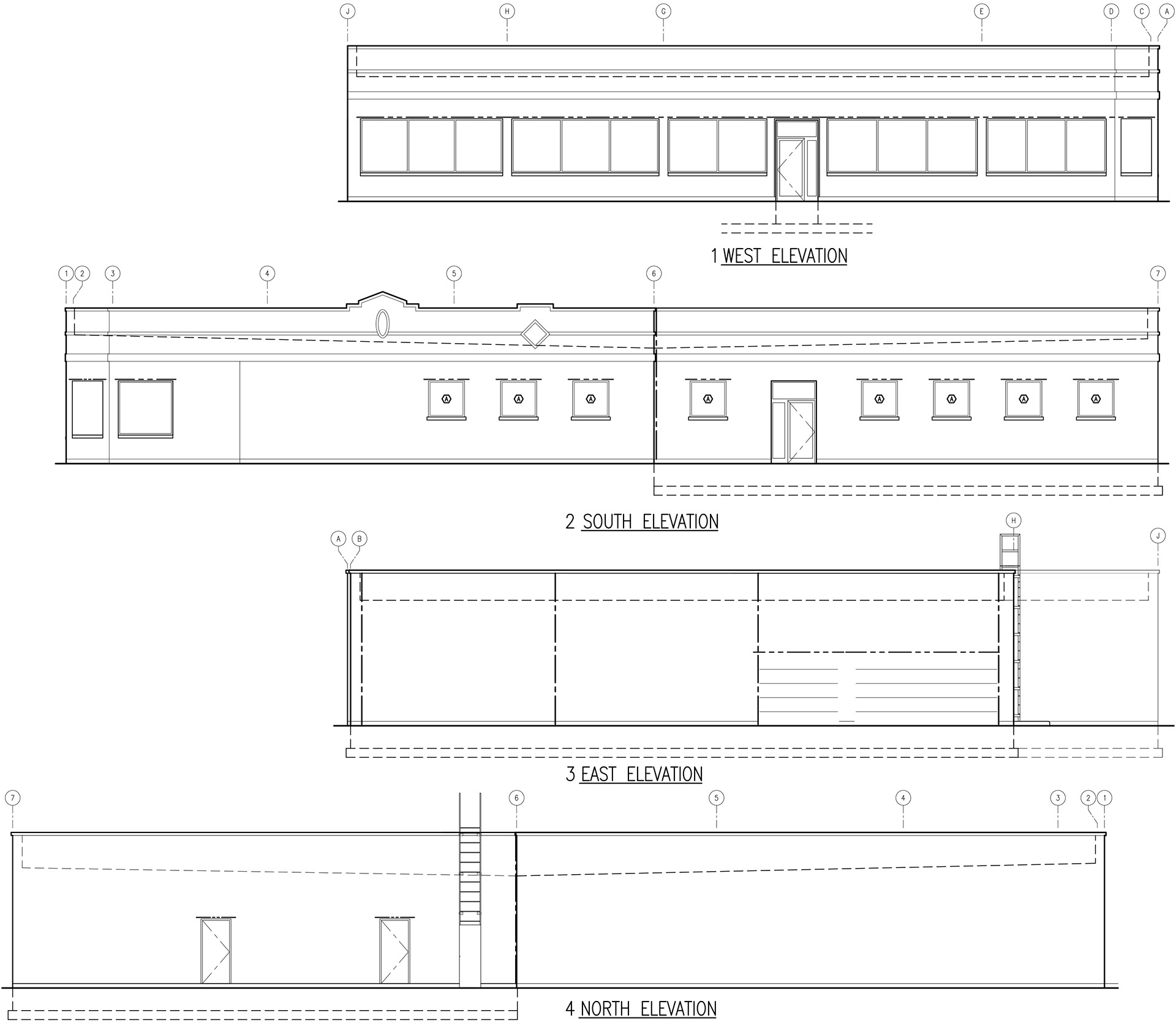
Austin
Renovated commercial space in Chicago into a new daycare for children.
↑
Back to Top