Experience
Projects
Resume
Contact
Isabella Mazzulla
Experience
Projects
Resume
Contact
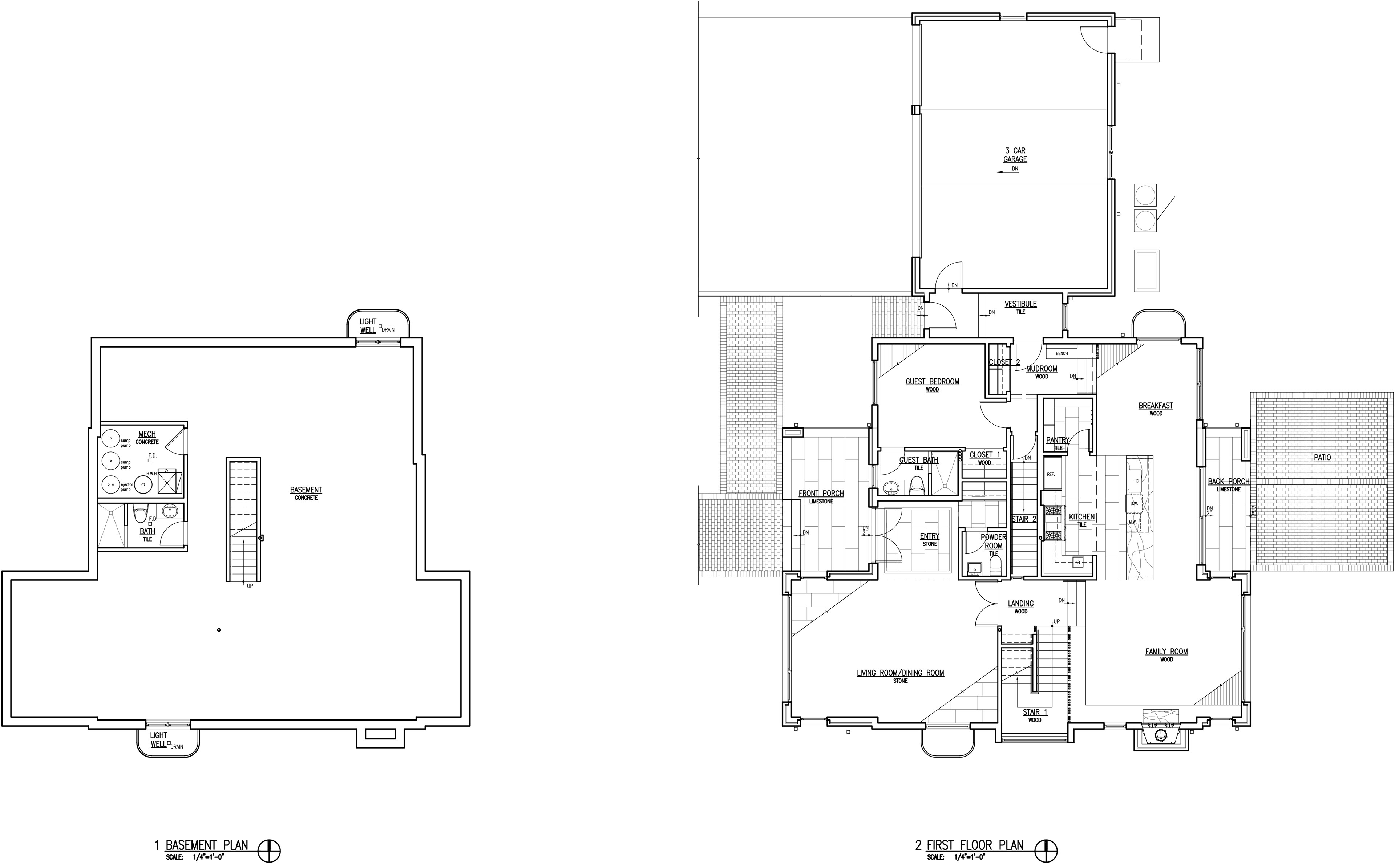
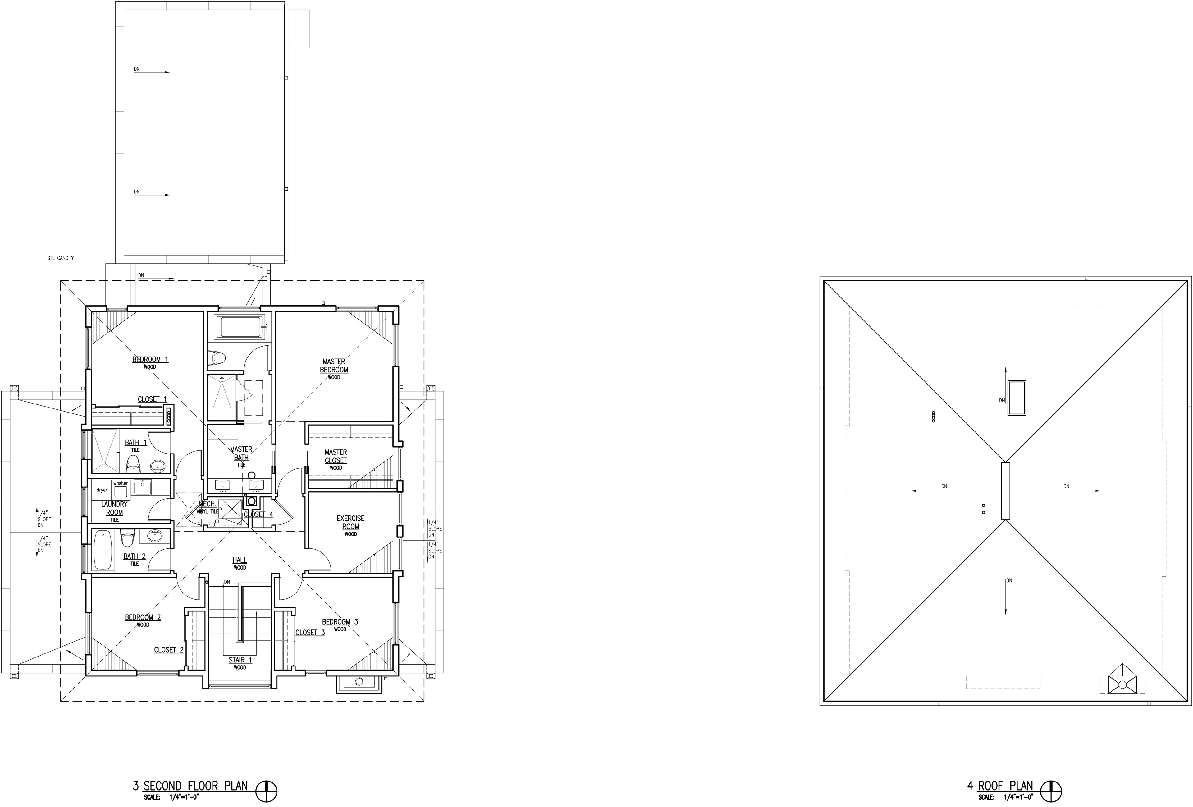
Palos Park
New single family home for a family of five on a half acre property in the suburbs of Chicago.
↑
Back to Top