Experience
Projects
Resume
Contact
Isabella Mazzulla
Experience
Projects
Resume
Contact
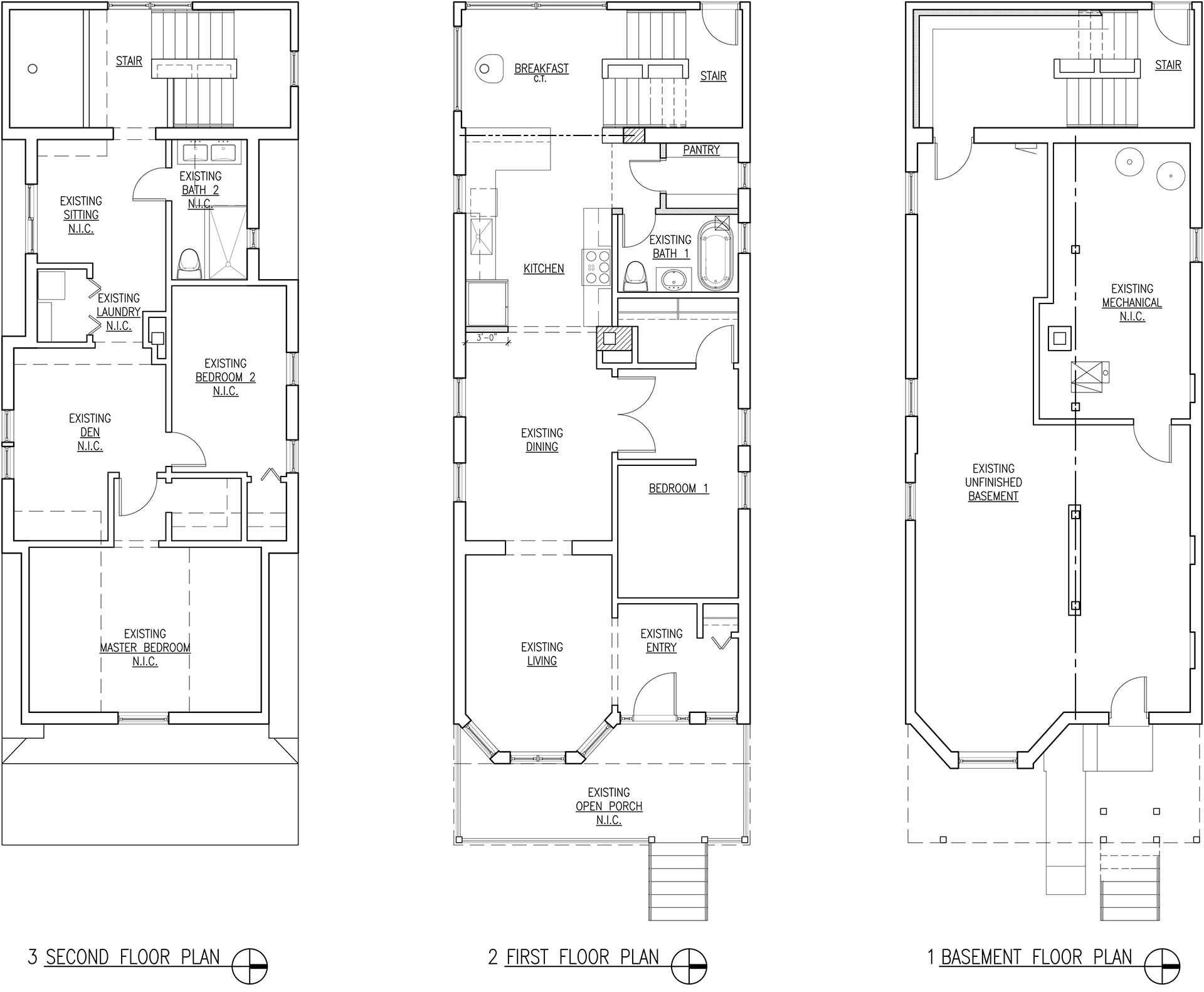
Avers
Renovation of a back enclosed porch and kitchen on an existing Chicago home.
↑
Back to Top