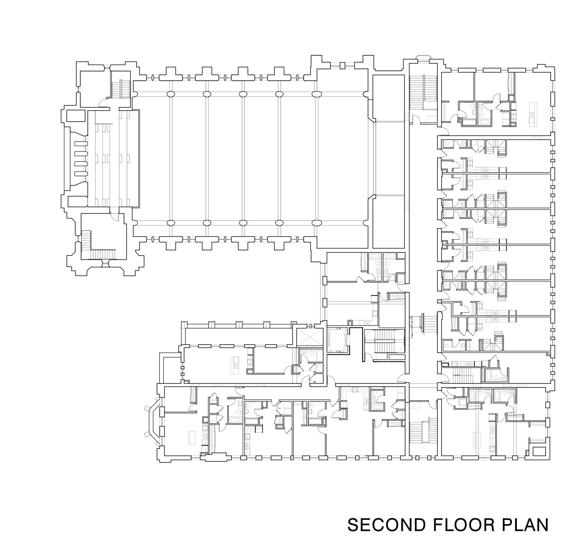
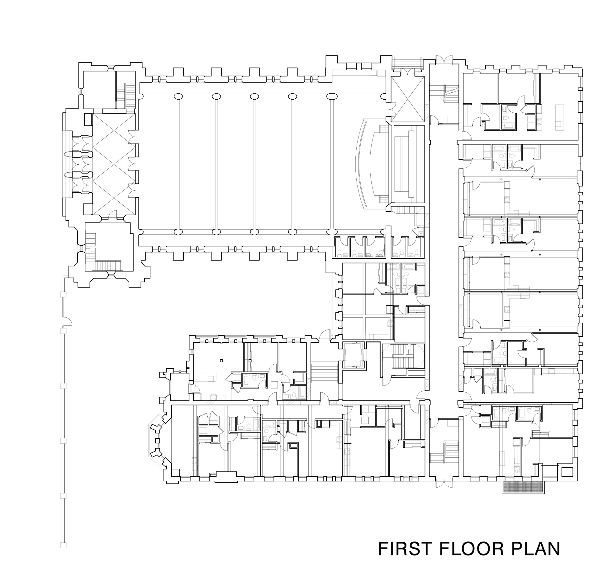
Renovation of an old monk sanctuary and campus buildings on the south side of Chicago. The project renovated the existing to fit residential units and a large shared work space.